Croix
RollRAM Library, 2025

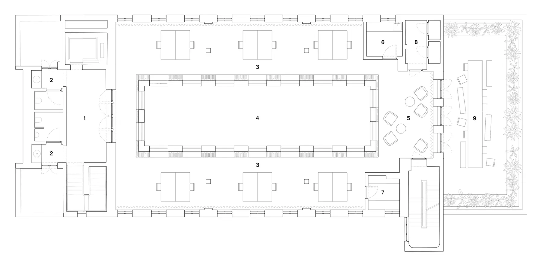
The new reference library at Shanghai’s Rockbund Art Museum transforms the former top-floor café into a space dedicated to research.

1 Lobby|2 Restrooms|3 Library|4 Atrium|5 Reading space|6 Kitchen|7 Archives|8 Mechanical room|9 Terrace

The design flips the Boulléan concept of the traditional library-gallery model, where bookshelves typically line the perimeter of a space meant for circulation. Here, the books take center stage. A large galvanized steel library wraps around the central atrium designed by David Chipperfield.

Reading tables are positioned along the perimeter, creating a quiet, intimate zone conducive to concentration and study. Each window serves as a reading nook or a dedicated display area for featured publications presented in vitrines.

The periodicals reading area opens onto a terrace, seamlessly extending the library experience outdoors. From here, visitors can take in views across the Huangpu River toward Pudong, creating a quiet moment of pause within the vibrant city fabric.

Client
RAM
Location
Rockbund Art Museum, Shanghai, China
Program
Library, Resource center
Area
250 sqm
Status
Completed 2025
Team
Roll (Architect), VOI (Local Architect)
Photographs
Yan Tao © Rockbund Art Museum
Related projects
Apartment Bayonne
House Labenne
Okindegia Bakery