Croix
RollApartment Bayonne, 2022

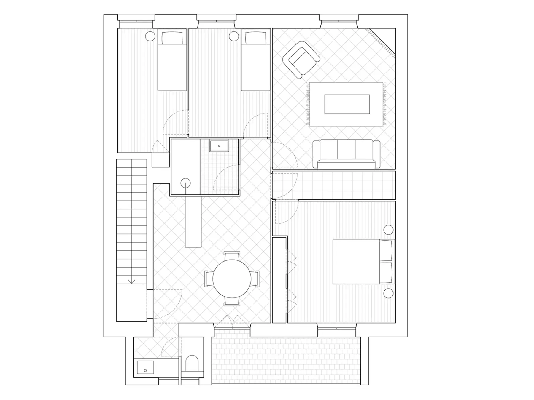
This dual-aspect apartment is located in a 1920s building in the heart of Bayonne’s Saint-Esprit district. The intervention involves a complete stripping of the entire space to reconfigure it in a more legible and radical way.

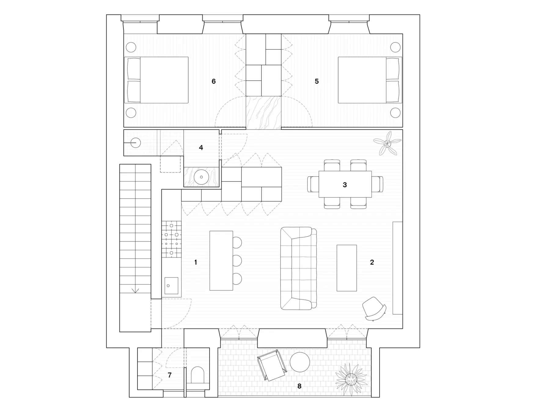
A single partition is created along an east-west axis to divide the space into two functional zones. The first, facing north, is private and contains two adjoining bedrooms and a bathroom. The second, on the south side, is a large, flexible living area organized around central storage and generously open to a spacious terrace.

Project floor plan : 1 Kitchen|2 Living|3 Dining|4 Bathroom|5 & 6 Bedrooms|7 Laundry / WC|8 Terrace

Existing floor plan

Two unique objects were integrated into the living space: a colorful kitchen designed like a totem, giving a visual polarity to the room, and a large closet providing a sense of intimacy to the sleeping areas without further dividing the large open space. A palette of carefully chosen materials and colors is applied throughout the different rooms in a playful and idiosyncratic way.

The two identically sized bedrooms are separated by a thick partition that incorporates full-height storage on both sides, as well as the hallway that provides access to them. This passage is highlighted on the floor by a green marble slab, marking the threshold.

Except for the large storage unit around which the living areas are arranged, the living room is deliberately left open to offer great flexibility of use and to allow for possible reconfigurations as needs evolve.

Client
Private
Location
Bayonne, France
Program
Housing
Area
73 sqm
Status
Completed 2022
Photographs
© Sandrine Iratcabal
Related projects
Okindegia Bakery
RAM Library
House Labenne