Croix
RollBibliothèque du RAM, 2025

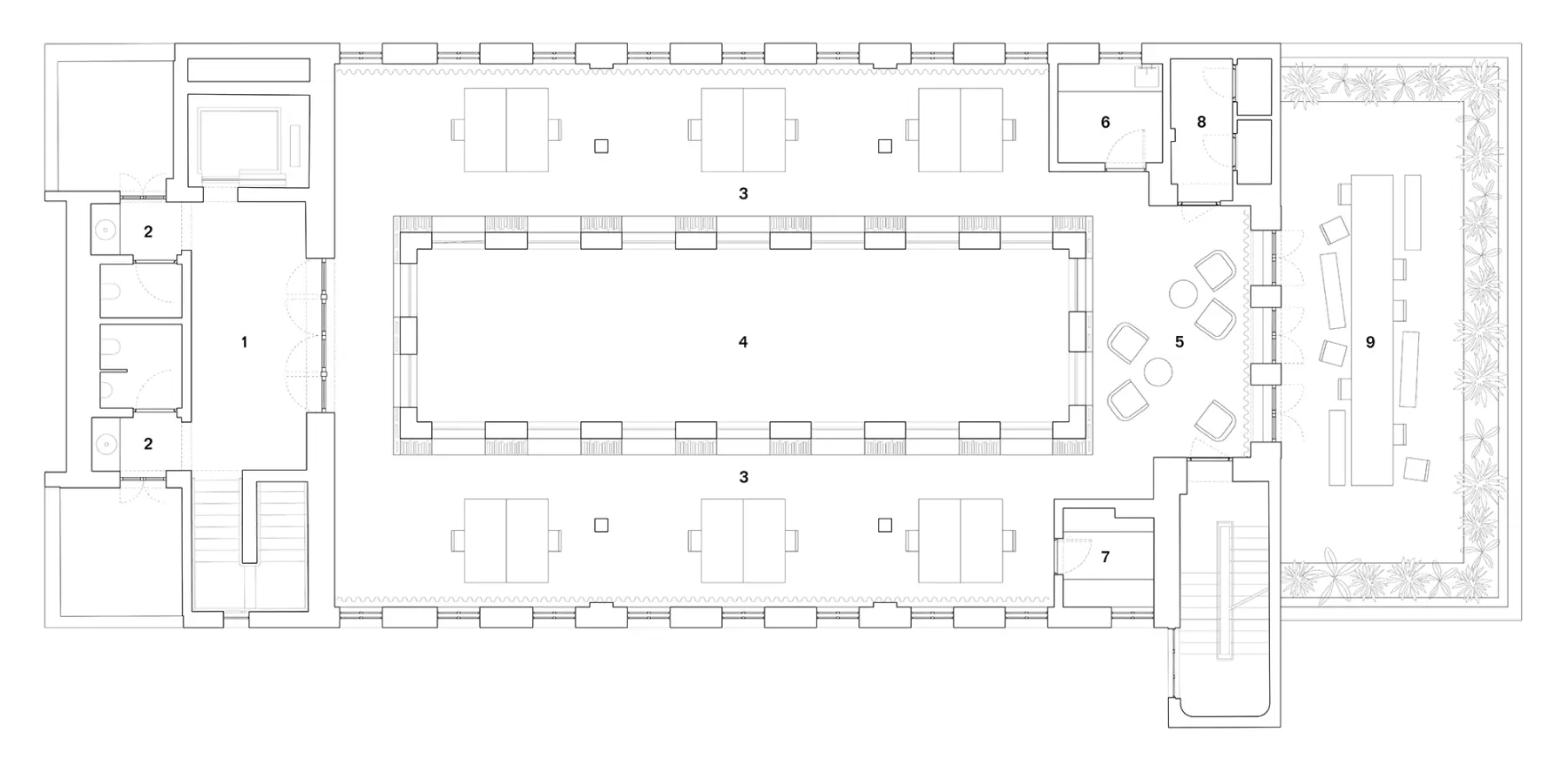
La nouvelle bibliothèque d’ouvrages de référence du Rockbund Art Museum situé dans le quartier du Bund de Shanghai, transforme l’ancien café situé au dernier étage du musée en un espace consacré à la recherche.

1 Accueil|2 Sanitaires|3 Bibliothèque|4 Atrium|5 Espace de lecture|6 Kitchenette|7 Archives|8 Local technique|9 Terrasse

L’aménagement propose une inversion du principe de la « bibliothèque-galerie », où les rayonnages habillent les murs périphériques d’un espace de déambulation. Ici, les ouvrages occupent le cœur de l’espace. Une grande bibliothèque en acier galvanisé enveloppe l’atrium central conçu par David Chipperfield.

Les tables de travail se déploient en périphérie, dans un environnement calme et intime, conçu pour favoriser la concentration et l’étude. Chaque fenêtre forme une alcôve de lecture ou un espace pour la présentation d'ouvrages en vitrine.

Un espace dédié à la consultation de revues s’ouvre sur une terrasse, prolongeant l’usage de la bibliothèque vers l’extérieur. Depuis cette terrasse, la vue s’étend au-delà du fleuve Huangpu jusqu’au district de Pudong, offrant une respiration au cœur de Shanghai.

Client
RAM
Lieu
Rockbund Art Museum, Shanghai, Chine
Programme
Bibliothèque, Centre de ressources
Surface
250 m2
Statut
Livré
Equipe
Roll (architecte mandataire), VOI (architecte associé)
Crédit photo
Yan Tao © Rockbund Art Museum
Related projects
Rénovation d'un appartement
Maison Labenne
Boulangerie Okindegia