Croix
RollIn The Days of AIDS, 2023

Multidisciplinary, the exhibition presents four decades of creative work where the visual arts, literature, music, film and dance meet scientific research, pop culture and the decisive action of associations.

The exhibition design of In The Days of AIDS. Creation, Narratives and Interweavings embodies the notion of interweaving, offering a linear path punctuated by openings and overlaps that encourage a multiplication of viewpoints from one theme to another. The exhibition engages the visitors’ bodies and senses, offering experiences that are sometimes collective, sometimes individual.

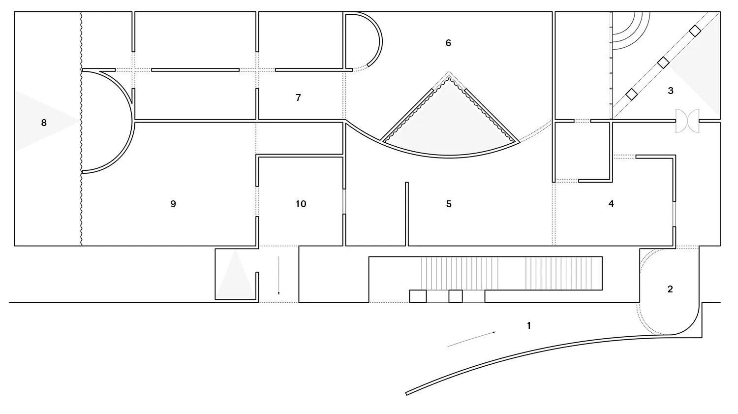
1 A Sign of the Times|2 Antechamber|3 "I'm Going out this Evening"|4 Proliferation|5 "This is my Blood”|6 “I have Simply Run through the World”|7 “This Age is a Poet's Threnody Chant”|8 Page, Stage, Street|9 Protocols and Protests|10 DANCING = LIVING

The section “I’m going out this evening”, dedicated to the night and the exposure of bodies, consists of two distinct spaces: an immersive black box inspired by the Palladium, an iconic New York club of the 1980s, and a backroom, accessible after passing through Jean-Michel Othoniel’s Secret Closet, where explicit works are displayed. Separated by a two-way mirror, these two spaces place the visitor in an ambivalent position: on one side, they see themselves dancing among others; on the other, they observe unseen, immersed in the intimacy of the backroom, caught between contemplation and voyeurism.

The exhibition design thoughtfully responds to the works, capturing their themes with nuance: immersive environments celebrate joy, struggle, and life, while more intimate spaces invite moments of quiet reflection.

The exhibition design reexamines a familiar element of the gallery space: the exhibition wall. Flexible and multifunctional, it becomes in turn a display surface, a guiding line, a divider, or a partially stripped-down backdrop.

Felix Gonzalez-Torres’s installation Untitled (Arena), 1993, brings the exhibition to a close. Visitors are invited to wear wireless headphones and dance in pairs beneath the artist’s string of lights. The space is framed by gallery walls, some of which are left bare. One features a circular oculus, offering a glimpse of the bright red section titled “This Is My Blood”, located at the start of the exhibition. This spatial device creates a tension between the unexpected intimacy of a waltz inside a museum and the symbolic weight of blood as a signifier of illness.

Client
MAMCS - Musée d’Art Moderne et Contemporain de Strasbourg
Location
Strasbourg, France
Program
Temporary Exhibition
Area
750 sqm
Curator
Estelle Pietrzyk
Research Advisors
Thibaud Croisy, Didier Roth-Bettoni
Research Team
Anna Millers, Thierry Laps, Coralie Pissis, Alexandre Zebdi-Libot
Team
Roll (Exhibition Design), Studio Plastac (Graphic Design), Studio 10-30 (Lighting)
Status
Completed 2023
Photographs
© Max Hart Nibbrig, © MAMCS
Related projects
Dearest Banlieues
Regards du Grand Paris
The Metro! Grand Paris in motion